К-322

Характеристики:

  • Этажей 1
  • Площадь (кв.м.) 70
  • Кол-во комнат 3
  • Длина 10
  • Ширина 9.5

Цена:

Опции проекта:

варианты
Доступно вариантов проектных решений
  • 3
  • 2
  • 1
стены
Основной материал стен. ГБ - газобетон, К - кирпич, У - утеплитель. Без буквы - воздушный зазор.
  • У 150 мм + К 250 мм
  • ГБ 400 мм
фундамент
Виды фундаментов, которые возможны в этом проекте
  • МЗЛФ
кровля
Кровля. Может быть двухскатной, плоской или вальмовой.
  • Двухскатная
  • Плоская
перекрытие
Виды перекрытий. Балки - по деревянным балкам, СПМ - сборно-монолитные. Могут быть доступны также монолитные и плитами ПК.
  • Балки
  • СМП
c гаражом
Проект может быть с гаражом
  • Нет
- Включить подсказки
Небольшой дом-квартира. Есть в нескольких вариантах исполнения фундамента и кровли. Подойдёт для большинства грунтовых условий.

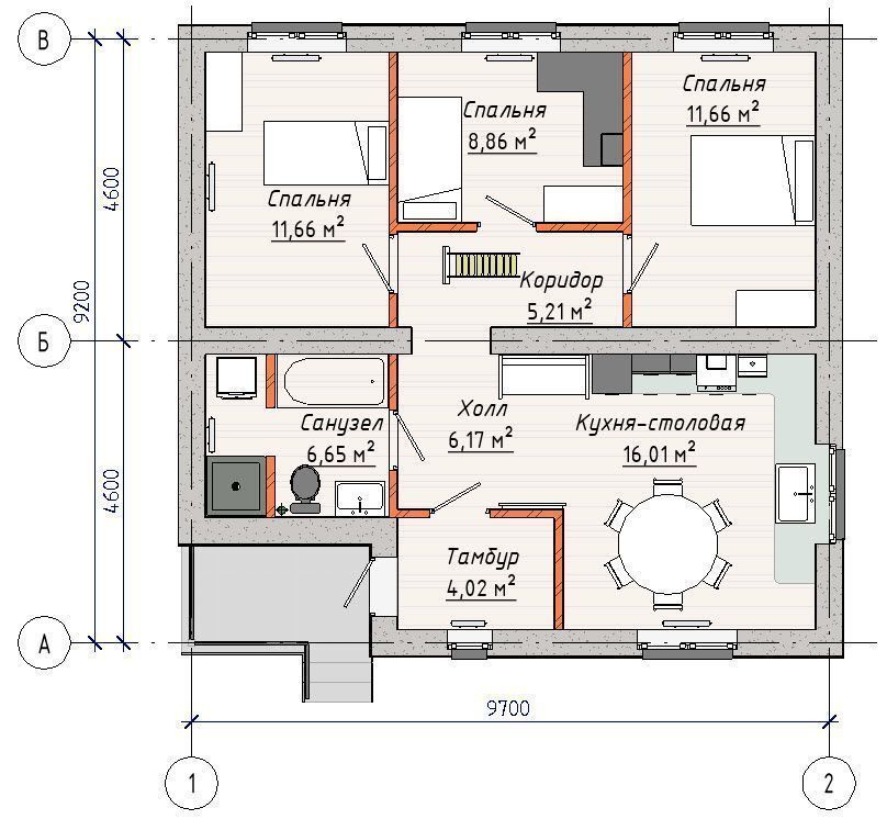
Планировки

Буклеты

к-322-3-1 Буклет АС.pdf

Размер файла: 1.86 MB

Укрупнённая смета

подробная интерактивная смета здесь
Земляные работы 25 400,00
Фундамент 196 968,00
Крыльцо 14 832,00
Кладка стен 348 890,00
Полы по грунту 145 675,00
Перегородки 54 384,00
Чердачное перекрытие 202 750,00
Монолитный пояс 52 974,00
Устройство кровли 280 195,00
Двери и окна 86 000,00
Инженерное сопровождение, % от суммы работ 60 494,00
Снабжение стройки, % от суммы материалов и сторонних услуг 24 094,00
Непредвиденные расходы, % от общей суммы 70 403,00
Общая стоимость 1 563 059,00

Чтобы приобрести проектную документацию, напишите нам на почтовый адрес admin@m-project33.ru с указанием вашего ФИО.

Мы вышлем вам счёт, после оплаты которого вам будет выслан комплект документации.

Также перед покупкой ознакомьтесь с соглашением об условиях приобретения и использования электронных копий проектной документации.

  • Комментарии
Загрузка комментариев...