Довольно часто возникает необходимость в устройстве Т-МЗЛФ - ленточного фундамента с широкой подошвой. Подошву обычно делают для снижения давления на грунт в ситуациях, когда нагрузка на фундамент велика и/или основание слабое и легко сжимаемое.
Примером такой ситуации может быть фундамент под дом с кирпичной облицовкой. Например, вот такой узел:

Рис. 1. Монолитный Т-МЗЛФ для дома с кирпичной облицовкой.
Аналогичный вариант такого же фундамента, но с использованием сборно-монолитной технологии:

Рис. 2. Сборно-монолитный Т-МЗЛФ для дома с кирпичной облицовкой.
В этих вариантах защита фундамента от сил морозного пучения осуществляется утеплением грунта основания. Но конструктивно этот утеплитель нельзя закрепить на внешней вертикальной поверхности, т.к. облицовка опирается на самый край фундамента:

Рис. 3. Вариант Т-МЗЛФ с утеплением для стены из газобетона.
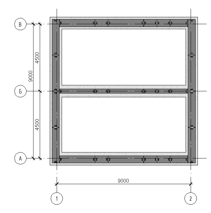
Поэтому удобнее разместить утеплитель под подошвой (рис. 1-2), чтобы упростить узел опирания облицовки и отделку цоколя. А более широкая подошва нужна для снижения давления на грунт и прежде всего на ЭППС под подошвой.Сравним обе технологии на примере вот такой конфигурации фундамента:

Рис. 4. План фундамента.
Спецификации материалов для устройства каждого из вариантов фундамента выглядят так:

Рис. 5. Спецификация материалов для монолитного Т-МЗЛФ.

Рис. 6. Спецификация материалов для сборно-монолитного Т-МЗЛФ.
Сметная стоимость такого фундамента будет такой:
- для монолитного варианта - 419 т.руб.
- для сборно-монолитного варианта - 325 т.руб.
Основная экономия (более 20%) для сборно-монолитного фундамента объясняется тем, что существенно сокращаются дорогие опалубочные работы, монолитные и арматурные.
Пример исполнения такого сборно-монолитного фундамента подробно описан в теме одного из наших заказчиков на Форум-Хаус.
Надо отметить, что строительные бригады не очень любят сборно-монолитный тип фундаментов и приводят массу доводов, почему он плох. Например, говорится следующее:
- он менее прочный и жесткий - это действительно так, но только если рассматривать фундамент в отрыве от здания в целом. А учитывая совместную работу фундамента, стен и арматурных поясов, общая жесткость здания в целом при использовании такой технологии меняется незначительно.
- блоки ФБС обычно неровные и сложно сделать качественно поверхность фундамента. Да, блоки ФБС грешат разбросом линейных размеров. Но эта проблема решается тем, что все блоки выравниваются по одной лицевой стороне, а все дефекты чтобы были во внутрь.
- ФБС изготавливают из остатков бетона на заводах. И это тоже правда, но это не означает, что они плохие. На многих бетонных заводах стоят формы ФБС, куда заливают бетон, от которого отказался заказчик, или когда сломался автобетоносмеситель и куда-то срочно надо слить из него бетон. Поэтому вам может достаться блок ФБС, сделанный из бетона М350, при том, что по нормам в блоки идёт М100. Рекомендуется только не использовать блоки со слоистой структурой и холодными швами, т.е. те, которые заливались в несколько приёмов. Их видно визуально.
- Надо нанимать кран и технику для перевозки ФБС. Да, это так, но сметные расчёты показывают, что использование тяжёлой техники в большинстве случаев выгоднее, чем ручного труда. Поэтому это скорее плюс, а не минус.
- Нужен хороший подъезд к площадке. Это наиболее существенный аргумент, но в тоже время надо учитывать, что ФБС - не единственный вид изделий, который обычно используется на стройке. Кроме него нужно подвозить бетон, кирпич, газобетонные блоки. В проектах с жб-перекрытиями часто используются плиты и т.д. Поэтому организация нормального подъезда к стройке позволяет экономить на очень многих видах работ, потому что ручное перетаскивание материалов также стоит денег.
Между тем, реальная причина такой "нелюбви" объясняется довольно просто - стоимость работ на устройство такого сборно-монолитного фундамента почти в 2 раза ниже, чем для монолитного (105 против 191 т.руб.). Т.е. подрядчики зарабатывают на нём значительно меньше, чем на монолитном. Это надо учитывать заказчикам при переговорах с подрядными бригадами.
m_project33