В этой статье рассмотрим основные подходы к устройству арматурных поясов в ИЖС. Также рекомендуем прочитать и вот эту статью про виды деформаций и армопояса.
Армопояс предназначен выполнять целый ряд функций в строительной конструкции:
-
Повышает общую жесткость здания и его сопротивление изгибающим нагрузкам, подвижкам грунта - неравномерным осадкам и морозному пучению.
-
Пояс улучшает распределение нагрузок на фундамент от стен, перекрытий и крыши, выравнивает нагрузки.
-
Используется для опирания плит перекрытия и каких-то других несущих конструкций на кладку из слабых материалов (например, газобетона низкой плотности), защищая кладку от смятия.
-
Выполняет роль перемычки или ригеля, перекрывая проёмы и пролёты.
-
Используется для крепления мауэлрата и принимает на себя распирающие нагрузки от стропильных систем.
-
Может служить выравнивающим слоем, задаёт "горизонт" для последующих конструкций, устраняя неровности и перекосы, допущенные на более ранних стадиях строительства.
-
Повышает сейсмоустойчивость
Особую актуальность армированный пояс приобретает при возведении конструкции из газосиликатных блоков и других стеновых материалов, не обладающих большой устойчивостью к деформациям изгиба, сдвига и смятия.
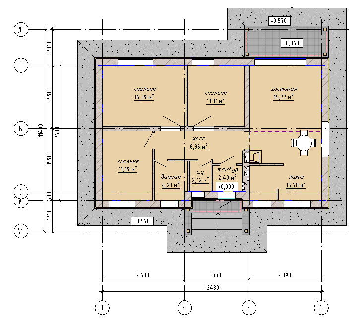
Рассмотрим, как можно учитывать выполнение этих функций на примере вот такого одноэтажника из газобетона (район не относится к сейсмически опасным):

Рис. 1. Планировка.
Вопрос жесткости здания рассматривался в этой статье. Оценим возможный вклад армопоясов в пространственную жесткость здания:

Рис. 2. Разрез.
Мы видим, что:
- Данное сооружение относится к условно гибким, т.к. длина самой длинной стены L=13м, высота конструктивной части H=4м (стена+фундамент), соотношение L\H>3.
- Здание имеет в качестве фундамента ребристую плиту с высотой ребра 400 мм.
Если провести расчёты изгибной жесткости, то окажется, что без верхнего арматурного пояса её недостаточно, чтобы противостоять возможным неравномерным подвижкам грунта основания в 3-5 см и возникающему при этом изгибающему моменту. Для того, чтобы улучшить изгибную жесткость, достаточно сделать армошов на высоте 3-3.5 метра в виде слой раствора толщиной 2-2.5 см, с уложенными в него продольными арматурными стержнями или сеткой с общим сечением 3-4 см2.
Однако, если выполнить расчёт возникающей поперечной силы и сдвиговых усилий, то становится понятно, что такой армошов совершенно не способен противостоять деформации сдвига. Единственным конструктивным элементом, обладающим определённой сдвиговой жесткостью, является ребро плиты, но и оно неспособно в одиночку отработать такую поперечную силу, вызывающую сдвиговые деформации. Поэтому, в проекте заложен достаточно высокий армопояс, который кроме обеспечения сдвиговой и изгибной жесткости здания выполняет ещё одну функцию - является оконной перемычкой:

Рис. 3. Армопояс, выполняющий роль оконной перемычки.
В результате такого выбора конструкции армопояса мы имеем следующие плюсы:
- Получаем конструктивный элемент, существенно повышающий изгибную и сдвиговую жесткость здания, относящегося к условно гибким по соотношению L\H;
- Поскольку опирание чердачного перекрытия происходит частично на продольные стены, а частично на поперечные, то использование армопояса с высоким сечением позволяет перераспределить нагрузки от балок перекрытия и выровнять линейные нагрузки на фундамент;
- Конструкция армопояса (высота сечения) позволяет совместить в нём функцию перемычки над оконными проёмами.
Других значимых плюсов такая конструкция не имеет, т.к. с легким чердачным перекрытием на основе деревянных балок с утеплителем не требуется усиление кладки для недопущения её смятия.
Рассматривая конструктив данного проекта, можно увидеть второй аромопояс поверху стены:
Рис. 4. Армопояс для крепления маурэлата.
Основная функция этого армопояса - крепление мауэрлата. Поскольку газобетон представляет собой довольно хрупкий материал, то есть сомнения в надежности крепления мауэрлата непосредственно к газобетонной стене. Кроме этого, ветровые нагрузки имеют динамический характер, поэтому крепление должно "не разболтаться" со временем. С этой точки зрения монолитный пояс как основа для мауэрлата выглядит предпочтительнее.
Также в конструкции кровли используется жесткое крепление стропил к мауэрлату, без "скользячек", т.е. будут появляться распирающие усилия на стену, изменяющиеся в зависимости от изменения нагрузки на кровлю (снеговой, например). В этом случае арматурный пояс должен иметь значительную ширину сечения, чтобы противостоять горизонтальной составляющей распора.
С учётом вышесказанного, армопояс на рис. 4 имеет ширину 400 мм и высоту 60 мм.
m_project33