Глубина заложения канализации приведена в разделе 6.2 СП 32.13330.2012 "Канализация. Наружные сети и сооружения. Актуализированная редакция СНиП 2.04.03-85".
Согласно п.6.2.4 СП 32.13330.2012:
Наименьшую глубину заложения канализационных трубопроводов необходимо определять теплотехническим расчетом или принимать на основании опыта эксплуатации сетей в данном районе. При отсутствии данных минимальную глубину заложения лотка трубопровода допускается принимать для труб диаметром до 500 мм — 0,3 м, а для труб большего диаметра — 0,5 м менее большей глубины проникания в грунт нулевой температуры, но не менее 0,7 м до верха трубы, считая от поверхности земли или планировки (во избежание повреждения наземным транспортом).
Согласно п.6.2.5 СП 32.13330.2012:
Т.е. основные факторы, которые регламентируются в СП, это:Максимальную глубину заложения труб определяют расчетом в зависимости от материала труб, их диаметра, грунтовых условий, материала засыпки, ширины траншеи и метода производства работ.
- температурный (чтобы не замерзло);
- нагрузки (чтобы не сломало или не продавило трубопровод)
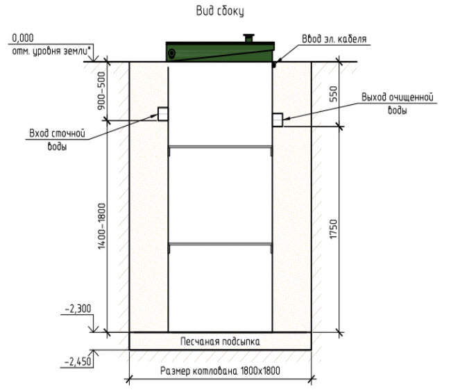
Рассмотрим ещё один фактор, который имеет большое значение в ИЖС - конструктивный. Он определяется конструкциями наиболее популярных ЛОС. Например, вот схема ТОПАС-6 от производителя:

Рис. 1. Схема установки ТОПАС-6.
Из представленной схемы мы видим, что минимальная глубина входного патрубка (а значит и трубопровода от здания до ЛОС) составляет 500 мм. У остальных производителей ЛОС размеры примерно такие же, наиболее часто фигурирует отметка 500-700 мм от уровня поверхности грунта.
Такие размеры определяются тем, что производителям ЛОС необходимо представить конкурентоспособную конструкцию, требующую как можно меньше земляных работ, и чтобы объём самой установки как можно более полно использовался, не было пустого пространства, которое возникает при большем заглублении установки.
Учитывая ещё требование к уклону трубопровода (2 см на 1 метр для трубы ф110 мм), при удалении ЛОС от дома на 5 метров получается, что выпуск трубопровода из дома должен находиться на глубине около 400 мм ( при глубине входного патрубка в септик 500 мм от грунта).
Насколько такие схемы жизнеспособны и как они соотносятся с нормативами?
Производители ЛОС опираются на фразу "принимать на основании опыта эксплуатации сетей", уверяя, что все будет хорошо, они так всегда делают. В целом, действительно, при нормальной эксплуатации трубопровод регулярно обогревается сточными водами. А при выдержанном угле уклона стоки успевают стечь по прогретым стенкам раньше, чем они опять охладятся до такой температуры, чтобы стоки стали замерзать. Но, если периодичность использования не очень велика, а объём и температура стоков недостаточны для того, чтобы прогреть трубу, возможно намерзание на дне трубопровода, которое в таких условиях только прогрессирует.
Можно ли решить эту проблему укладкой плит теплоизоляции сверху трубы? Моделирование теплотехнических процессов говорит о том, что нет. Само по себе утепление грунта сверху обычно лишь замедляет промерзание грунта на начальном этапе, но не устраняет его. Аналогично тому, как термос с горячем чаем, оставленный на неделю на сильном морозе, рано или поздно все равно промёрзнет. Поэтому наиболее эффективным является не утепление грунта, а утепление самой трубы с использованием специальных скорлуп:

Рис. 2. Скорлупы для утепления трубопроводов.
Поскольку ПВХ-труба канализации имеет небольшую теплоёмкость, то тепла даже в небольших по объёму стоках обычно хватает, чтобы прогреть её при утеплении скорлупами, т.к. отдача тепла холодному грунту в этом случае происходит значительно медленнее. В такой прогретой трубе стоки успевают стечь по уклону без какого-либо намерзания на стенках и дне. При утеплении же трубы теплоизоляционной плитой сверху, не исключается контакт трубы с грунтом, поэтому общая теплоёмкость системы грунт-труба становится уже большая и требует значительно больше энергии на прогрев.
Для защиты же трубы от продавливания при малой глубине заглубления, рекомендуется использовать плиты, например, тротуарные, укладываемые сверху и распределяющие нагрузку на соседние области грунта.
m_project33