Деформации зданий

Возврат к списку

Все постройки имеют разную чувствительность к осадкам и подвижкам грунта основания, которые могут происходить в процессе строительства и эксплуатации, степень этой чувствительности определяется в основном их жесткостью.

В зависимости от жесткости все здания и сооружения подразделяют на три основных типа: 

  1. абсолютно жесткие
  2. имеющие конечную жесткость
  3. абсолютно гибкие

Абсолютно жесткие сооружения имеют очень большую жесткость в вертикальном направлении. Примером такой конструкции может служить башня или дымовая труба. Вследствие значительной жесткости эти сооружения не подвергаются изгибу и другим местным деформациям и испытывают осадку как единый массив. Например, Пизанская башня наклоняется как единый массив (крен).

Абсолютно гибкие сооружения под действием внешних нагрузок следуют за осадками основания, при этом дополнительные усилия в них практически не возникают. К таким сооружениям относят, например, эстакады или наземные теплотрассы.

Абсолютно гибкие и абсолютно жесткие сооружения в индивидуальном жилом строительстве встречаются крайне редко, в большинстве случаем мы имеем дело со зданиями конечной жесткости. Такие сооружения  при развитии неравномерных осадок или подвижек грунта получает деформирование, выражающееся в искривлении отдельных участков зданий. Имея конечную жесткость, они способны оказывать некоторое сопротивление неравномерной осадке, выравнивая ее, в результате чего в несущих и стенах возникают усилия, которые часто не учитываются при проектировании, что может привести к образованию трещин, нарушающих нормальную эксплуатацию зданий.

Наиболее распространённые деформаций зданий в индивидуальном жилом строительстве:


Рис. 1. Прогиб


Рис.2. Выгиб


Рис. 3. Сдвиг.

В свою очередь здания конечной жесткости можно разделить ещё на два подтипа:

  • условно жесткие, у которых L\H =< 3
  • условно гибкие, у которых L\H > 3,

где L - длина самой длинной стены здания, H - высота конструктивной части здания (обычно это высота всех этажей + высота фундамента, кровля не учитывается).

Вот два примера таких зданий из нашего каталога типовых проектов:
  • Условно жесткий дом по проекту К-197-1; L=15,5 метров, H= 8,5 метров, соотношение L\H=1,8
  • Условно гибкий дом по  проекту К-106-2; L=16,5 метров, H= 4,8 метров, соотношение L\H=3,4

Считается, что условно жесткие в меньшей степени испытывают деформации прогиба (выгиба) или сдвига, а лишь кренятся, как абсолютно жесткие. В части случаев это действительно так, но чтобы окончательно определить, как будет себя вести здания при определённых деформациях, надо учитывать материалы основных несущих и ограждающих конструкций, общую изгибную и сдвиговую жесткость здания, а также рассчитать усилия, возникающие в основных конструкциях этих зданий.

В большинстве случаев эта задача моделирования усилий в конструкциях здания решается путём приведения всего здания к некой абстрактной балке на упругом основании с приведёнными показателями жесткости. В этом случае можно определить изгибающий момент и поперечную силу в сечении здания. А зная эти силовые факторы, рассчитать усилия в каждом элементе конструкции, возникающие при неравномерных подвижках грунта основания. 

Например, в ВСН 29-85 приводится такая формула расчёта  усилий (изгибающего момента и поперечной силы) в зависимости от величины морозного пучения грунта:


Рис. 4. Формулы расчёта изгибающего момента M и поперечной силы F из ВСН 29-85.

В данной формуле:

B, B1 - коэффициенты, зависящие от конструкции здания (см. ВСН 29-85, рис. 5 и 6);
[EI] - приведённая к простой балке жесткость здания;
Δhfi - разность деформаций пучения различных частей здания;
L - длина самой длинной стены здания  

Аналогичные усилия можно рассчитать и из разности осадок разных частей здания.

Расчёт усилий в различных конструкциях здания тогда производится по следующей формуле:

Рис. 5. Формулы расчёта усилий в различных конструкциях здания.

где [EI]i, [GA]i - соответственно изгибная и сдвиговая жесткость сечения рассматриваемого элемента;
G - модуль сдвига, принимаемый обычно равным 0,4E
В целом, жесткость здания создаётся системой взаимосвязанных конструкций:
  • основанием фундамента;
  • фундаментом;
  • стенами;
  • железобетонными поясами;
  • железобетонными перекрытиями

В зданиях, возводимых из довольно хрупких материалов, например, из газобетона, стены обладают невысокой изгибной и сдвиговой жесткостью, особенно в районах проёмов. А стены из крупногабаритных керамических камней ("теплой керамики"), у которых по вертикали  только пазогребневое соединение и нет вертикальных клеевых швов, в принципе не имеют сдвиговой жесткости. В этом случае основная жесткость здания в большей степени определяться другими вышеперечисленными конструктивными элементами.

Таким образом, решая задачу обеспечения нормальной работы здания в будущем, необходимо подходить к его конструкции  системно и учитывать:

  1. Габаритные размеры здания,в частности высоту его конструктивной части (H) и длину самой длинной стены(L), а также их соотношение. 
  2. Вероятность возникновения неравномерных осадок или других подвижек грунта, определяемой его однородностью, величиной модуля упругости и пучинистыми свойствами.
  3. Жесткость основания фундамента. 
  4. Жесткость фундамента.
  5. Жесткость стен и изрезанность их проёмами.
  6. Жесткость перекрытия.
  7. Работу арматурных поясов.

Учёт данных факторов позволяет понять, почему для распластанных одноэтажников, типа нашего проекта К-106 или проекта Z10 не очень рационально использовать плитные фундаменты:


Рис. 6. Проект К-106-2


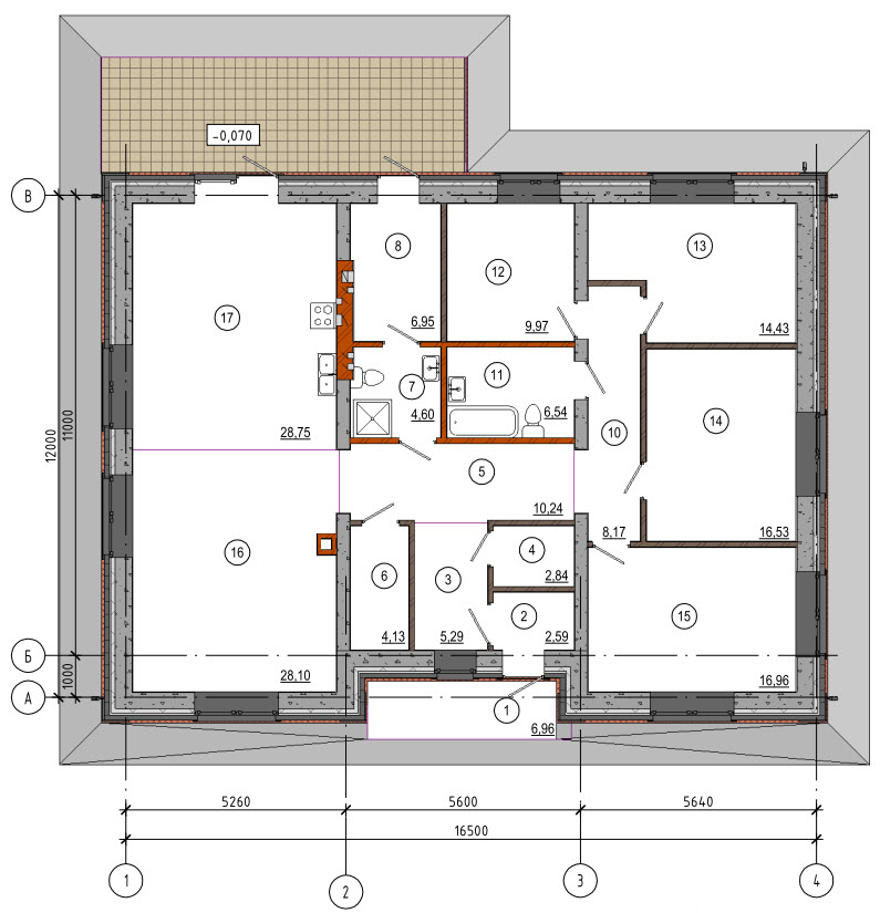
Рис. 7. Планировочное решение проекта К-106-2.

В данном проекте соотношение L\H=4,2 при использовании МЗЛФ, а с плитным фундаментом  L\H будет равно 5, т.е. дом очень подвержен деформациям и неспособен отрабатывать неравномерные осадки и подвижки грунта. Плитные фундаменты не обладают необходимой изгибной жесткостью, а ребристые плиты типа УШП, имеющие высоту сечения ребра 200-300 мм, ещё и необходимой сдвиговой жесткостью. 

Ситуацию с плитным фундаментом способны улучшить армопояса, однако надо учитывать, что коэффициент работы верхнего армопояса в одноэтажнике обычно не превышает 20% от максимального, поскольку возможно проскальзывание пояса по кладке  или даже отрыв. Значительно лучше работают межэтажные армопояса, поскольку они испытывают значительные нагрузки от вышележащих конструкций, увеличивающих силы трения в точках соединения "армопояс-стена". По этой же причине предпочтительны U-образные блоки для устройства армопоясов, поскольку они увеличивают площадь сцепления пояса со стеной. В ряде случаев коэффициент работы армопояса увеличивается до 30-35%.

Другой вариант использования плитного фундамента для зданий с соотношением L\H > 3  - это повышение жесткости основания, например, путём устройства толстых подушек из хорошо уплотнённого щебня, но в большинстве случаев более рационально выглядит использование относительно высокого МЗЛФ в качестве фундамента.


Загрузка комментариев...