К-209

Характеристики:

  • Этажей 1
  • Площадь (кв.м.) 163.4
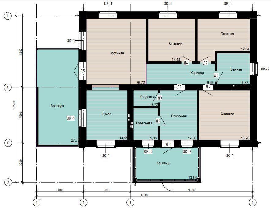
  • Кол-во комнат 5
  • Длина 17.5
  • Ширина 13.5

Цена:

Опции проекта:

варианты
Доступно вариантов проектных решений
  • 2
  • 1
стены
Основной материал стен. ГБ - газобетон, К - кирпич, У - утеплитель. Без буквы - воздушный зазор.
  • ГБ 400 мм
  • К 120 мм + 30 мм + ГБ 400 мм
фундамент
Виды фундаментов, которые возможны в этом проекте
  • УШП
  • МЗЛФ
кровля
Кровля. Может быть двухскатной, плоской или вальмовой.
  • Вальмовая
перекрытие
Виды перекрытий. Балки - по деревянным балкам, СПМ - сборно-монолитные. Могут быть доступны также монолитные и плитами ПК.
  • Балки
c гаражом
Проект может быть с гаражом
  • Нет
- Включить подсказки

Проект одноэтажного дома с несколькими вариантами фундаментов.

Планировки

Буклеты

K-209-2-буклет.pdf

Размер файла: 2.26 MB

Укрупнённая смета

подробная интерактивная смета здесь
Земляные работы 28 600,00
Плита УШП 536 735,00
Плита крыльца 39 319,00
Плита террасы 50 244,00
Кладка стен 535 400,00
Монолитные пояса 121 448,00
Чердачное перекрытие 195 930,00
Устройство кровли 347 725,00
Кровля крыльца 50 675,00
Окна и входная дверь 166 300,00
Инженерное сопровождение, % от суммы работ 72 582,00
Снабжение стройки, % от суммы материалов и сторонних услуг 40 397,00
Непредвиденные расходы, % от общей суммы 103 619,00
Общая стоимость 2 288 974,00

Чтобы приобрести проектную документацию, напишите нам на почтовый адрес admin@m-project33.ru с указанием вашего ФИО.

Мы вышлем вам счёт, после оплаты которого вам будет выслан комплект документации.

Также перед покупкой ознакомьтесь с соглашением об условиях приобретения и использования электронных копий проектной документации.

  • Комментарии
Загрузка комментариев...